Mini-Clik™ 雨量传感器
传感器检测到降雨量已达到预设值时,将停止计划中的灌溉,避免浪费水。
传感器
降雨
Product Line
传感器
- 当传感器检测到降雨量达到 3 毫米至 19 毫米时,会自动关闭灌溉
- 抗杂质,运行可靠,以及避免发生不必要的系统关闭
- 无线通讯让安装更简单
- Quick Response® 快速响应技术可加速系统关闭以保护植物
| 型号 | 说明 | 添加到列表 |
|---|---|---|
| MINI-CLIK | Mini-Clik 雨量传感器,有线雨量传感器,可在 ⅛ 英寸至 ¾ 英寸范围内调节降雨量,包括 7.5 米电缆和铝制支架 | + |
| MINI-CLIK-C | Mini-Clik 雨量传感器,有线雨量传感器,可在 ⅛ 英寸至 ¾ 英寸范围内调节降雨量,包括 7.5 米电缆和套管安装 | + |
| MINI-CLIK-NO | Mini-Clik 雨量传感器,有线雨量传感器,可在 ⅛ 英寸至 ¾ 英寸范围内调节降雨量,包括 7.5 米电缆、铝制支架和常开开关 | + |
| WM-CLIK | Mini-Clik 雨量传感器,无线型 Rain/Freeze-Clik(降雨/霜冻)传感器,可在 ⅛ 英寸至 ¾ 英寸范围内调节降雨量,铝制支架 | + |
| WM-CLIK-R | 仅无线型 Mini-Clik 接收器 | + |
| WM-CLIK-TR | Mini-Clik 雨量传感器,无线型 Rain/Freeze-Clik(降雨/霜冻)传感器,可在 ⅛ 英寸至 ¾ 英寸范围内调节降雨量,仅发射器,铝制支架 | + |
Create a new My List.
参数
运行参数
- 电气等级 (24 VAC):5 A
- 包含一条 7 米长、UL 认证、带护套的 0.5 mm2 双股导线
- 认证:UL、cUL、FCC、CE、RCM
- 质保期:5 年
性能
在暴雨期间继续灌溉不仅会导致植物和草皮持水量过于饱和,还会造成水资源浪费。Hunter 的 Mini Clik 雨量传感器提供了最为简单有效的方法,防止在任何程度的降雨期间或降雨之后喷头运行。可轻松安装在任何自动灌溉系统中。当Mini-Clik 检测到降雨量已达到预设水平时,将停止灌溉计划。此自动运行过程可确保在暴风雨期间不会进行灌溉。暴风雨过后,Mini-Clik 恢复控制器的正常灌溉。Mini-Clik 可与所有 Hunter 控制器兼容,连接后,它可以确保在降雨期间系统不会运行。
主要优势
可设置降雨量达到3 毫米至 19 毫米之间时
自动关闭灌溉系统
抗杂质影响,运行可靠
可使用 (P/N SGM) 安装到檐沟
与 Mini-Clik 传感器搭配使用的不锈钢防护罩,适用于商业项目 (P/ N SG-MC)
与大多数灌溉控制器兼容
*仅无线 Mini-Clik 传感器
CAD 安装详情
| Mini Clik with Generic Pedestal Controller | DWG | DXF | PDF 格式 | PDF-A4 |
| Mini Clik with Generic Pedestal Controller | DWG | DXF | PDF 格式 | PDF-A4 |
| Mini Clik with Generic Pedestal Controller with Sensor Guard | DWG | DXF | PDF 格式 | PDF-A4 |
| Mini Clik with Generic Pedestal Controller with sensor Guard | DWG | DXF | PDF 格式 | PDF-A4 |
| Mini Clik with Generic Wall Mount Controller | DWG | DXF | PDF 格式 | PDF-A4 |
| Mini Clik with Generic wall mount controller | DWG | DXF | PDF 格式 | PDF-A4 |
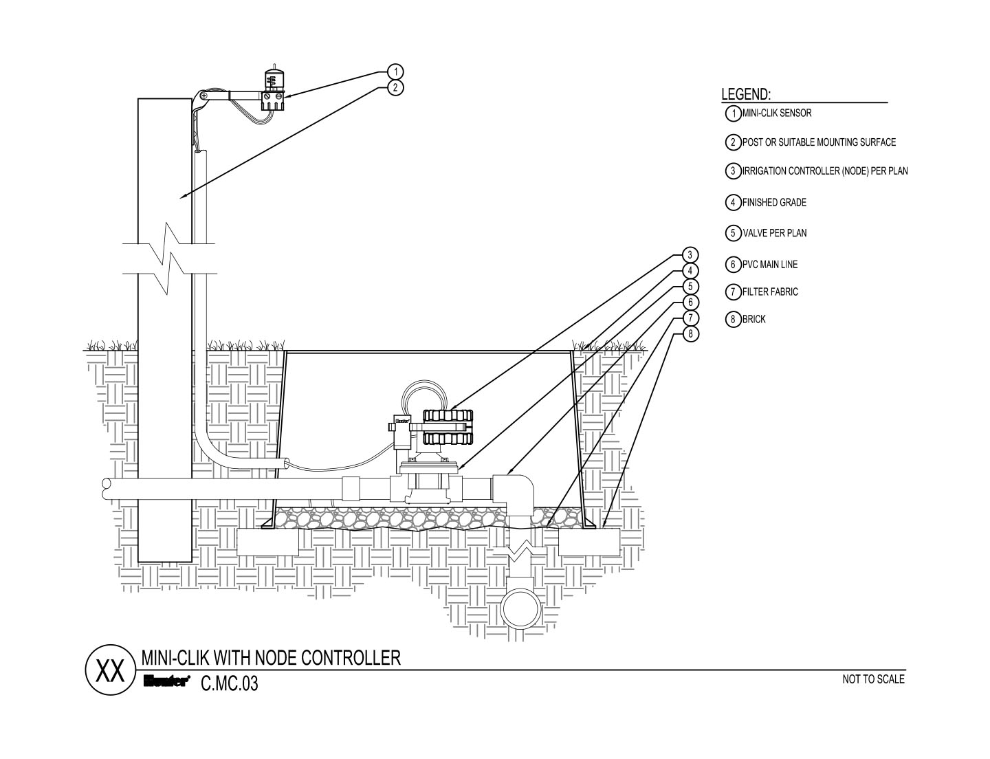
| Mini Clik with Node Controller | DWG | DXF | PDF 格式 | PDF-A4 |
| Mini Clik with Node Controller | DWG | DXF | PDF 格式 | PDF-A4 |





